Mat-Ing, Malča

Proizvodnja mašina za obradu voća i povrća i pekarske opreme
10 януари 2020 г. от
Mat-Ing, Malča
Solfins doo, Mladen Bogićević
| No comments yet

Mat Ing iz Malče implementirao je SolidWorks softversku platformu za razvoj proizvoda i kreiranje tehničke dokumentacije za proizvodnju i servis kako bi podigao kvalitet proizvoda na viši nivo, iskoristio stečena rešenja na novim projektima, i zaokružio portfolio proizvoda za voćarstvo, povrtarstvo i pekarsku industriju.

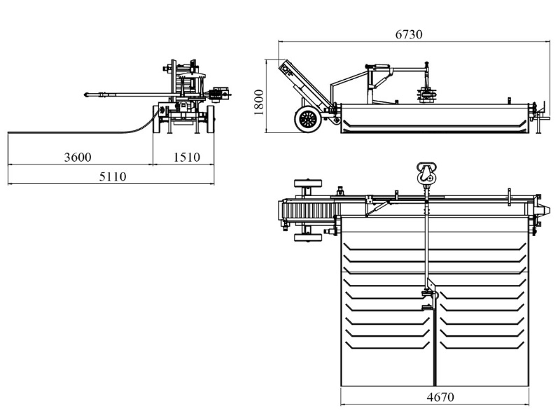
Primer primene SolidWorks softvera: Berač-tresač voća FHM-1

Odoo - Sample 1 for three columns

3D model u SolidWorks softveru

Odoo - Sample 2 for three columns

Tehnička dokumentacija

 
 

Gotov proizvod

Odoo image and text block

Proizvodni program za preradu voća i povrća

  • Branje - Berač voća

  • Transportovanje - Elevator, Prevrtač sanduka

  • Inspekcija - Inspekcioni transporter, Radni sto

  • Kalibrisanje - Kalibrator sa valjcima, Dobošasti kalibrator, Vibrokalibrator, Vibro sito

  • Pranje - Mašina za pranje voća i povrća

  • Vađenje koštice - Uređaj za vađenje koštice

  • Sečenje - Mašina za rezanje voća i povrća na kolutove, Mašina za rezanje jabuka na kolutove sa vađenjem semene lože, Mašina za rezanje jabuke na kriške sa vađenjem semene lože, Mašina za sečenje voća i povrća na kocke i rezanca, Linija za rezanje kupusa

  • Sušenje - Tunelska sušara sa gorionikom na pelet, Tunelska sušara sa gorionikom na gas

  • Blanširanje - Rehidrator-blanšer sa koficama, Rehidrator – blanšer sa trakom, Rehidrator-blanšer komorni

  • Konzerviranje - Rotacioni konzervator

  • Pasiranje - Vertikalna pasirka

  • Pakovanje - Automatska mašina za formiranje kutija, Mašina za zatvaranje kutija, Mašina za varenje kesa i džakova, Mašina za pakovanje u streč foliju

Pogledajte u Facebook video klipu kako rade njihove inventivne mašine za seckanje kupusa >

Odoo image and text block

Proizvodni program za pekare:

  • Priprema testa - Rotaciono sito za brašno

  • Mesilice za testo - Spiralna mesilica sa neodvojivom posudom, Spiralna mesilica sa odvojivom posudom, Horizontalna mesilica, Vertikalni portalni mikser za testo, Podizač posude P-250 / POD-48

  • Planetarni mikseri - Planetarni mikser PLM-30 / PLM-60

  • Delilice za testo - Mašina za deljenje testa D-01 i D-02

  • Mašine za oblikovanje testa - Laminator za testo LT-600, Mašina za okruglo oblikovanje testa, Valjak za kore, Mašina za zavijanje testa – VK-01 / VK-02 / VK-03

  • Komore - Intermedijalna komora

  • Pekarske peći - Parna pekarska peć, Tunelska peć sa fermentacionom komorom, Usisivač za čišćenje pekarskih peći

  • Mlinovi - Mlin za prezle

Mat-Ing, Malča
Solfins doo, Mladen Bogićević 10 януари 2020 г.
Споделяне на статус
Маркери
Архив
Регистрирайте се да оставиш коментар