Brodogradnja u Srbiji ponovo počinje da biva sve uzbudljivija grana industrije, ne toliko po obimu i udelu, koliko po raznovrsnosti projekata, kompanija i ideja na tržištu. Nažalost, najveći broj scenarija i dalje izgleda ovako: neko dobije ideju da može da automatizuje i pojeftini proces proizvodnje, video je kako to negde neko radi, ali ne poseduje nikakvu validnu dokumentaciju, i želi nove tehnologije da primeni samo u jednom malom segmentu, kao da je to moguće.
Međutim, takva je situacija bila i u mnogim drugim oblastima industrije kada je Solfins počinjao da implementira 3D tehnologije, pa danas na mestu nekadašnjih malih radionica imamo gigante koji izvoze svoje proizvode na sve kontinente - kotlove, sušare, delove za automobile i avione, itd.
Zato se nadamo da ćete na ovoj stranici pronaći dovoljno informacija da vas inspiriše da primenite 3D tehnologije u svojoj proizvodnji plovila i da obezbedite sigurnu budućnost svoje kompanije. To je još izvesnije ako budete među prvima!

Šta sve možete novim načinom razmišljanja?
možete napraviti jednostavan i brz put od ideja do proizvoda za kupce jer ne morate na svakom koraku menjati strategiju dok se prilagođavate onome što možete a ne onome što želite da izvedete
možete privući mlade talente kojima nedostaje vaše iskustvo ali imaju želje da uče i veštine neophodne da vam pomognu da uplovite u nove tehnologije
možete kreirati "digitalnog blizanca" sa kojim ćete znati apsolutno sve o projektu - da, možete simulirati apsolutno sve, od snage konstrukcije, preko ponašanja na površini vode za svaku konfiguraciju jednog proizvoda, pa sve do daljinskog upravljanja..
I najvažnije - možete iskoristiti svoje iskustvo u punom kapacitetu jer za to inače nema vremena ako gubite svoje mesece i godine za jedan po jedan projekat na kom se jurite sa rokovima i bavite se kompromisima do te mere da na kraju često i niste sigurne šta se i zašto na kom plovilu na kraju uradili..
Šta ste nas sve pitali da uradite brže i jeftinije..
Nove tehnologije OBRADE
Sečenje limova, proizvodnja originalnih vezova i detalja ograda, nadstrešnica, rukohvata, precizno savijanje profila i cevi u željenu geometriju, brza CNC proizvodnja preciznih modela za odlivanje korita i paluba..
Šta smo mi vas pitali:
Da li imate 3D model? Znate li na kojoj bi mašini to bilo rađeno? Koje su dimenzije mašine? U koliko osa može da radi mašina? Koliko vam često to treba?
Nove tehnologije MONTAŽE
Zavarivanje limova se pojavljuje kao najčešći upit jer nema dovoljno dobro obučenih ljudi, troškovi mogu da prelaze planirane, svaka inovacija je noćna mora ako iskače iz starih šablona koje je sve teže prodati novim kupcima..
Šta smo mi vas pitali:
Da li želite da zavarujete seriju istih modela ili za svaki projekat robot treba da se programira?
Novi DIZAJN za nove kupce
Primećujete da postoji problem da uvedete novi dizajn u proizvodnju jer dizajneri koje ste angažovali imaju softvere koji mogu da naprave lepe slike koje je praktično nemoguće pretvoriti u projekat..
Šta smo mi vas pitali:
Da li biste sami učili da radite u 3D ili imate nekoga ko već zna ili kog treba da obučimo? Da li znate da vam je jedan čovek dovoljan za sve što se tiče dizajna i projekta - dizjan, crteži za proizvodnju, renderi za prodaju?
Novi sistem za PONUDE i praćenje PROIZVODNJE
Kako da se ne izgubite u varijantama? Kako da optimizujete ponudu tako da nudi raznovrsnost kupcima a vas ne udavi u troškovima magacina i radnim satima za praćenje svakog novog projekta?
Šta smo mi vas pitali:
Da li samo želite vaše postojeće proizvode da radite nešto jeftinije i lakše, ili želite da radite na nekom potpuno ovom nivou, i za neke nove kupce, da se takmičite sa najboljima na domaćem i stranom tržištu?
VIDEO: Primer brzog čamca u SolidWorks 3D CAD softveru sa simulacijom kretanja u SolidWorks Flow Simulation softveru
ukratko, može sve, ali..
Mora da se ide korak po korak, gde je prvi zapravo i najveći..
Novi pristup starim problemima gradnje plovila
ići malo po malo moguće je tek posle prvih velikih koraka
Digitalizacija informacija
bilo kakvo osavremenjivanje procesa proizvodnje, uvođenje automatizacije procesa i operacija, podrazumeva digitalizaciju informacija!
3D model
kada digitalizujete trgovačku radnju to podrazumeva bar-kodove, broj komada u magacinu, isporučene komade, itd.
Kada digitalizujete proizvodnju bilo čega, pa i plovila, prvo i osnovno jeste 3D model. i to ne bilo kakav 3D model već ozbiljan inženjerski 3D CAD iz kog ćete dobiti i rendere za prodaju i crteže za proizvodnju i osnovu za svaki budući projekat.
Novi nivo poslovanja
jednom kada izađete iz 2D pristupa i ručnog ispravljanja grešaka na licu mesta čekićem i brusilicom, tada će vam ostati samo da brinete kako da se snađete u novom okruženju gde teme kao što su kašnjenje, ispravke, jeftinije, zamenjuju teme kao što su marketing, varijante proizvoda, luksuzno opremanje, dodatne usluge za klijente, itd.
3DEXPERIENCE Platforma u brodogradnji
CATIA na 3DEXPERIENCE platformi
Rešenje koje obuhvata sve što je potrebno za razvoj i proizvodnju bilo kog tipa i dimenzija plovila, uz kompletno rešenje za svaki detalj:
projekat, 3D model, simulacije i razvijene šeme za proizvodnju od bilo kog materijala (metal, tkanine, kompoziti)
ugrađeni procesi razvoja, simulacija, potvrde dizajna svakog segmenta, upravljanja projektom, upravljanja izmenama i varijantama, renderinga, marketinga, prodaje..
Zahvaljujući najmoćnijim softverskim alatima koji su integrisani u 3DEXPERIENCE platformu možete pratiti i najnovije trendove direktno - kompozitne materijale, integraciju robota, ergonomiju, itd.
još nekoliko primera korišćenja 3DEXPERIENCE platforme u praksi
Primena 3D štampe i 3D skeniranja
skratite skupe procese u razvoju i proizvodnji
Jeftino do maketa i alata u proizvodnji
štampajte metal, plastiku, armirane kompozite
jeftina proizvodnja steznih alata i mekih pakni
pribori za fiksiranje i zavarivanje bilo kojih uglova
makete plovila ili pojedinačnih elemenata
originalni dizajn elemenata spremnih za ugradnju
Lako do bilo koje geometrije brzim 3D skeniranjem
+ uz specijalizovana rešenja za reverzni inženjering
remont alata, sklopova, potrošenih delova
unapređenja geometrije koja se pokazala lošom
"krađa" prethodnog dizajna da stvorite nešto novo
poređenje planiranog i dobijenog alata za korita, palube, elemente plovila
Projektovanje u brodogradnji
primer solfins projekata
Projektovanje trupa broda u SolidWorks softveru
Polazna tačka u našem rešenju - MultiSurf

AeroHydro - pola veka CAD-a u brodogradnji
AeroHydro je prvi počeo da razvija CAD rešenja za projektovanje brodova i čamaca još u ranim 70-im godinama prošlog veka. Još tada su uspeli da razviju sofisticirane aplikacije za razvijanje složenih površina za industrijske potrebe.

MultiSurf CAD rešenje
MultiSurf je rezultat više od 25 godina istraživanja i razvoja u oblasti složenih formi i površina. MultiSurf je kombinacija industrijske snage i tehnologije AeroHydro-a, a sa SolidWorks softverom predstavlja neprevaziđen, moćan, a istovremeno lak za upotrebu softverski alat za dizajn brodova, jahti i čamaca.

Šta radi MultiSurf?
Projektovanje površina trupa
Podela površina na pojedinačne table
Razvoj i markiranje površina oplate
Procena težine i težišta broda
Uticaj tankova na plovne karakteristike
Hidrostatika
Veza sa softverima za proračun brzine broda
Tipovi površina u MultiSurf softveru
Razdvojive površine
Razvojive površine – u razvijenoj formi imaju pored markera za pozicije rebara (zeleno) i markere za izvodnice (crveno) po kojima je na apkant presi moguće savijati lim i na taj način dobiti željeni oblik bez deformacije na "čekiću". Ključna korist je smanjenje vremena potrebnog za deformaciju lima i mogućnost da manje obučeni radnici budu uposleni na poslovima deformacije limova. Povećana tačnost se podrazumeva, a potreba za tehnološkim dodacima se gubi.

Nerazdvojive površine
Nerazvojive površine – Razlika u odnosu na prethodne je u kasnijem proizvodnom postupku za deformaciju, odnosno oblikovanje površina oplate trupa. Nerazvojive površine se mogu dobiti deformacijom na „čekiću“ i nekim drugim tehnikama, ali ne prostim savijanjem na presi. U razvoju se kao pomoć operateru na „čekiću“ mogu markirati linije sa istim stepenom deformacije, koje su od velike pomoći u procesu proizvodnje (vidi sliku).
Video - MultiSurf projektovanje u brodogradnji
Centralno rešenje - SolidWorks
Projektovanje enterijera (Interior design)
Layout i raspoređivanje elemenata
Detaljno 3D uklapanje ploča i elemenata
Provera mogućnosti manipulacije i prostora u montaži
Projektovanje nameštaja
Profesionalni foto i video renderi
Treća stepenica - ShipWorks
ShipWorks - specijalizovano rešenje za brodogradnju na SolidWorks platformi
Dodatak SolidWorks, koji automatizuje sve ponavljajuće poslove i kreiranje izlaznih izveštaja, radioničke dokumentacije i dodaje sve segmente koji su karakteristični za brodogradnju:
Automatsko imenovanje i označavanje elemenata
Markiranje elemenata
Automatizovano definisanje pločastih elemenata, rebara, pregradnih zidova, kolena, traka i profila
Automatizovana veza sa softverima za „pakovanje“ delova (nesting), kroz direktnu vezu sa bazom podataka (Lantek) ili eksportovanjem svih pločastih elemenata na brodu u DXF format.
Automatizovano kreiranje šablona i dokumentacije za savijanje profila i deformaciju elemenata oplate
Razvoj elemenata oplate trupa...
Četvrta stepenica - Lantek
Direktna integracija SolidWorks-a i ShipWorksa sa industrijskim standardom za programiranje CNC mašina za sečenje lima
Lantek Expert Cut is a CAD / CAM system specially designed to automate the programming of sheet metal cutting machines (oxy-cut, plasma, laser, water jet). It is the result of more than 25 years experience in close collaboration with both manufacturers and users of these types of machines. It perfectly combines machine technology with customers’ programming and management requirements.
Lantek Expert Cut is designed in such way, so that users only have to follow the steps indicated by the system.
SolidWorks PDM - Ovde sve povezujemo u jednu celinu
SolidWorks Enterprise PDM – upravljanje dokumentima i informacijama o proizvodima, timski rad, procedure, odlučivanje, lansiranje u proizvodnju i nabavku...
Kako smo zamislili naše rešenje?
Postupak projektovanja broda
Direktna integracija i jednostavno vođenje projekta kroz faze i softvere
Bidirekciona veza SolidWorks i Multisurf softvera
Podela na sekcije i izrada koncepta

Definisanje funkcionalnih celina unutar broda. Konkretno, rezervisanje prostora u u krmi i analiza zapremina tankova i ostalih funkcionalnih elemenata.

SolidWorks omogućava rad sa površinama i zapreminskim (solid) modelima. Prikazanom metodologijom se definiše koncept i zauzeće prostora u krmi, ali se isti modeli kasnije koriste za dobijanje elemenata čelične konstrukcije.

Ovde je moguće u ranim fazama projekta rezervisati prostor za brodsku opremu, cevovode, tankove...
Svaka izmena na zapreminskim modelima, reflektovaće se i na samu čeličnu konstrukciju (rebrenice i pregradni zidovi).
Veza sa MultiSurf površinama je i dalje prisutna!
Čelična konstrukcija i površinski model

Koristeći površinski model trupa i zapreminske modele iz prethodnog koraka dolazimo do površinskog modela konstrukcije. Ovakav pristup omogućava kreiranje velikog broja rebara i pregrada odjednom, čime se postiže znatno veća produktivnost u odnosu na „element po element“ pristup, prema kome se svako rebro i njegovi elementi tretiraju posebno.

Treba napomenuti da je veza sa svim prethodnim koracima i dalje aktivna i da izmena površine trupa dovodi do izmene svih elemenata u konstrukciji.

Normalno je očekivati da, ako je izmena takva da brod ne liči na svoju izvornu varijantu, dođe do problema sa ali se oni mogu rešiti veoma brzo, jer ako problem postoji SolidWorks nas o tome obaveštava.

Površine oplate

Paralelno sa definisanjem rebara i pregrada, vrši se podela oplate sekcije na table, ofsetovanjem za debljinu lima i trimovanjem mesta na kojima ima kolizije.

Ovde se takođe zbog same izrade mogu dodati tehnološki dodaci.
Ovakve površine se sada mogu direktno razviti kroz ShipWorks plug-in za SolidWorks ili se vratiti u Multisurf, kako bi se tamo odradio posao.

Naše rešenje pruža veliku fleksibilnost i mogućnost da se sam proces rada prilagodi potrebama klijenta.
Površine oplate prate sve izmene koje se budu javile u pomenutom lancu.
Sistem označavanja

Sistem označavanja sekcija, podsekcija i elemenata je automatizovan i izvodi se prema ključu sa slike. Svi elementi imaju prefiks sekcije ili podsekcije u kojoj se nalaze i odrednicu za tip elementa (ploča, profil, traka, koleno...). Moguće je definisati odrednicu i za stranu broda (PS – port side, SB – star board side).
Oznaka elemenata se kasnije koristi kod markiranja.
Struktura celog broda

Ako pretpostavimo da su površinski modeli konstrukcije svih sekcija gotovi i da je još na samom početku osoba odgovorna za projekat definisala strukturu sekcija i ostalih podsklopova u SolidWorks/Shipworks softveru.
Mi sada tačno imamo definisana mesta u strukturi gde smeštamo pomenute površinske modele. Kada završimo ovaj posao i otvorimo glavni sklop broda, automatski ćemo imati prikaz kompletne konstrukcije broda iako nismo još uvek kreirali niti jedan element.

Ovo je trenutak kada i ekipe koje su zadužene za izradu cevovoda i bravarije mogu da startuju sa poslom jer imaju dobru osnovu za to.
Ključna korist je to što će svi članovi tima imati uvid u to šta ostali rade i do koje faze u projektu su stigli, kao i paralelni rad svih članova biroa.
Ceo brod i svaka sekcija ponaosob će se svakodnevno „osvežavati“ sa svim izmenama koje se odrade i stećiće se jasna slika o problemima i kolizijama, pa će se većina problema rešavati na nivou 3D modela.
Faze na projektu broda - Upravljanje projektom
Ključne koristi:
Paralelni rad svih službi (trup, cevovodi, bravarija, oprema, enterijer...), kroz SolidWorks Enterprise PDM sistem
Detekcija problema i kolizija u ranim fazama projekta
Većina otvora i prolaza za opremu i cevovode će biti isečeni na plazmi umesto na licu mesta zbog paralelnog rada
Smanjeni broj intervencija na već ugrađenim elementima (ukrajanje, pravljenje prolaza, otvora ...).
Mogućnost sekcijske gradnje, gde bi se većina elemenata cevovoda i bravarije ugradila u samu sekciju pre prebacivanja na „navoz“.
Povećan kvalitet i zadovoljstvo kupaca jer se zbog bolje vidljivosti svih podsistema može napraviti funkcionalnija i ergonomskija konstrukcija.
Bravarski sklopovi
BRAVARSKI SKLOPOVI
Parametrizacija omogućava brze izmene i primenu bravarskih podsklopova na drugim brodovima
Asocijativnost između 3D geometrije, radioničke dokumentacije i specifikacije materijala (sastavnice)
Kinematika pokretnih elemenata i alati za detekciju kolizije
Simulacije i optimizacija konstrukcije
Provera nosivosti i sigurnosti vaših konstrukcija
Testiranje kinematike i izbegavanje kolizija između elemenata
Ušteda u materijalu, kroz oduzimanje materijala na mestima gde nije potreban i dodavanjem ukrućenja na mestima koja su opterećena
Lakša overa projekta ili izvedenog stanja od strane regulatornih organa
Olakšanje konstrukcije broda i poboljšanje plovnih karakteristika
Povećano zadovoljstvo kupaca, zbog ergonomskije i kvalitetnije konstrukcije

Konkretan projekat – provera fundamenta za kran na postojećem brodu:
Analiza opterećenja u različitim pozicijama krana, sa maksimalnim opterećenjem
Sagledavanje distribucije opterećenja i detekcija slabih tačaka
Rekonstrukcija i ponovna provera
Poređenje dva rešenja
Donošenje ispravne odluke

Pre i posle - Simulacija unapređene geometrije (na osnovu prve iteracije simulacije prvobitnog dizajna)
Da li će da klizi po vodi?
Specijalna rešenja za simulacije fluida
Kada se radi razvoj plovila naročito zanimljiva može biti primena softvera za simulacije fluida gde u jednom rešenju imate:
simulacije potiska i analizu efikasnosti elise
simulacije hidraulike
simulacije termalnih prenosa
simulacije ponašanja tečnosti u rezervoarima na plovilu - pijaća voda, gorivo, ulja..
simulacije spoljašnjih strujanja - kretanja po površini vode u različitim uslovima.
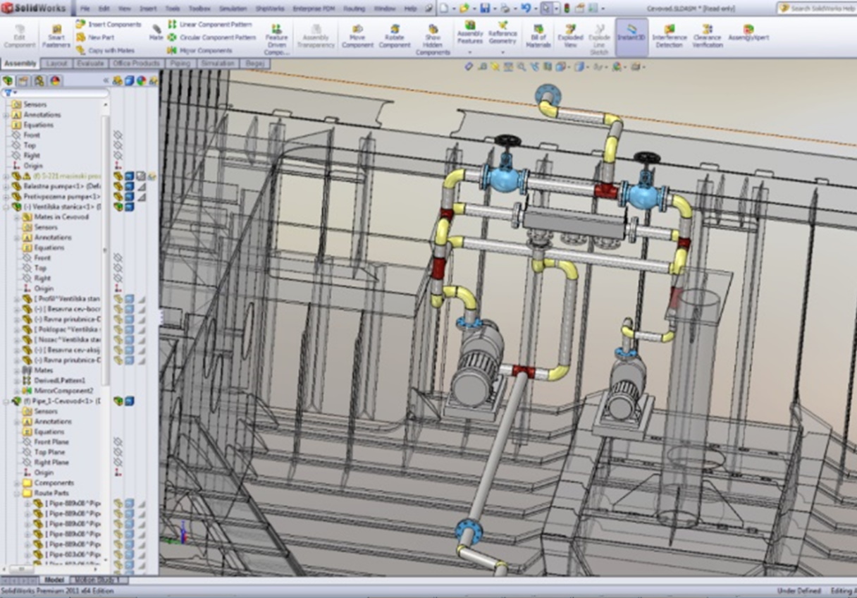
PROJEKTOVANJE CEVOVODA

Biblioteka elemenata za cevovode napravljena prema specifikaciji klijenta
Automatsko rutiranje cevnih deonica sa ubacivanjem, kolena, račvi, prirubnica...
Automatizovano generisanje izlazne specifikacije materijala i kupovnih komponenti

Automatizovano kreiranje radioničke dokumentacije sa izometricima
Izlazni izveštaji su formatirani prema zahtevu klijenta



Cevovodi na krmi - jednostavno kreiranje uz pomoć biblioteke standardnih delova
Primeri upotrebe SolidWorks softvera u projektovanju brodova, čamaca i jahti
Art of Kinetik (Multisurf + SolidWorks)

Konstrukcija, površine i sklopovi

Svi elementi i podsistemi

Izgled završenog plovila
STX France Cabins enterijeri i Westport Shipyard luksuzne jahte

STX France Cabins je bila ćerka firma STX korporacije specijalizovana za projektovanje brodskih enterijera i luksuznih jahti sa preko 50 SolidWorks licenci samo u sektoru projektovanja enterijera.
Kompanija Westport je prešla na SolidWorks 3D CAD nakon korišćena standardnih 2D CAD rešenja koja su pravila brojne probleme u savremenom dizajnu i proizvodnim procesima. Westport Shipyard Case Study na SolidWorks sajtu >
Dassault Systemes CATIA 3DEXPERIENCE
rešenja za najzahtevnije korisnike
Za brodogradnju bez kompromisa
Najmoćniji softverski paket za projektovanje koji apsolutno vlada auto i avioindustrijom, dostupan je i za projektante plovila.
Brodogradnja - Projektovanje brodova, čamaca, jahti u SolidWorks softveru